

施工单位:中国建筑第八工程有限公司
项目概况 四川省医学科学院· 四川省人民医院综合科研大楼位于成都市,坐落于成都市青羊宫旁、浣花溪畔四川省人民医院本部,距著名景点宽窄巷子仅一街之隔,西南紧邻历史文化遗址杜甫草堂,是集临床医疗、健康保健、医学科研与医学教育于一体的三级甲等综合性医院。 设计建设标准为三星级绿色建筑,总建筑面积10.65万m2,其中地上面积为77921平方米共23 层,主要功能包括手术中心、医技中心及科研中心;地下面积为28668平方米,共3层,功能为放疗科、人防地下室、停车库及设备用房等。




项目效果图
立面形式
立面形式建筑立面设计对环境与室内舒适度具有显著影响。延续城市风貌与医院传统,立面采用横向设计元素,与节能遮阳系统相得益彰。根据太阳角度和路径,西侧和南侧立面设计具有遮阳功能的折线外窗,可有效减少夏天进入室内的热辐射,从而提高遮阳效果,既保证自然采光又避免阳光过度照射。折线外窗将设计美感与功能优化相结合,实现与建筑立面的完美融合。

面采用灰色、白色铝单板及木色金属板,呈现丰富多彩的设计效果。通过调整窗户朝向,避免夏季午后阳光直射,结合可调节遮阳措施,成功降低光辐射15%~30%,降低室内能耗23%。多样又统一的立面实现功能与形式的完美结合,使简洁的建筑形体更加生动。



夜景效果图
外窗采用Low-E中空玻璃,使用暖边间隔条密封,具有极好的保温气密性,断桥铝窗框与铝单板表皮相得益彰,与现代材料形成有机对话。立面设计既提高了建筑视觉冲击力,又在保障室内舒适性的基础上提高了能源效益。

格栅标准节点

铝单板造型柱

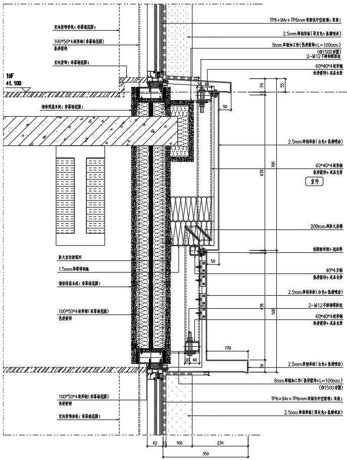
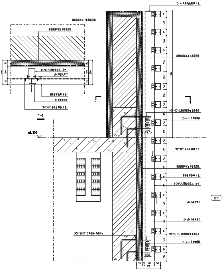
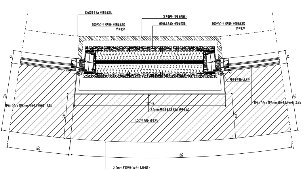
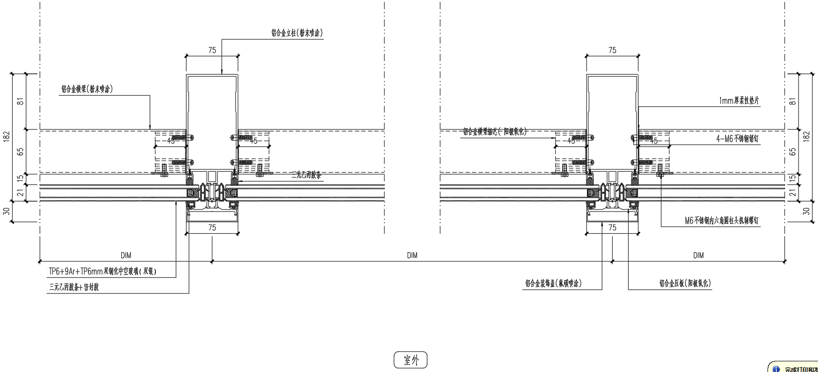
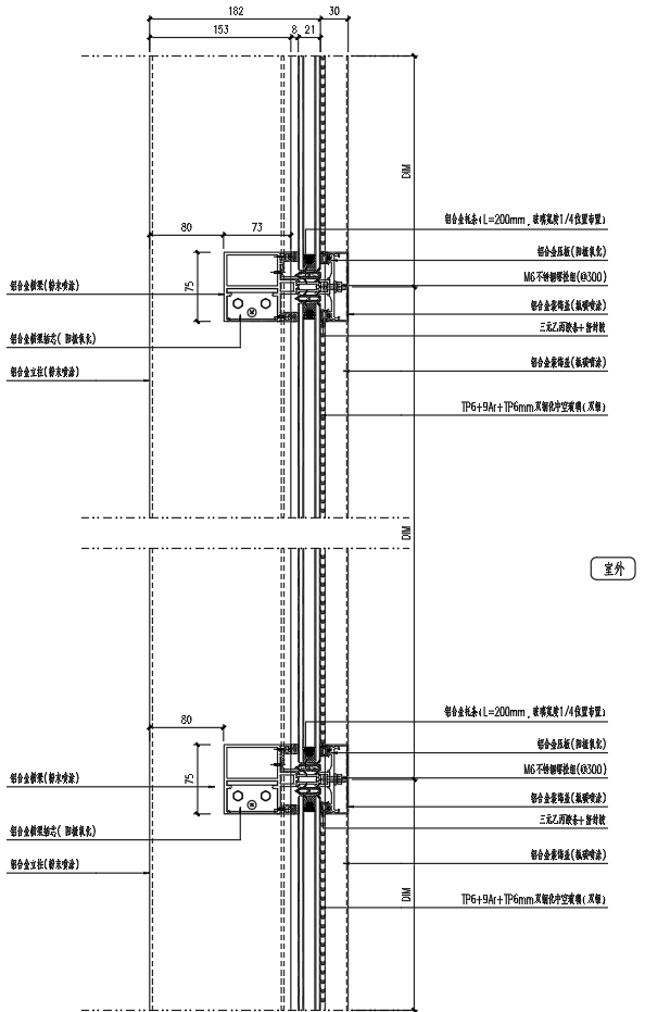
玻璃幕墙标准节点



028-85315579
13908004916
13708088828
成都武城装饰工程有限责任公司成都幕墙设计公司欢迎你 备案号:蜀ICP备12021971号-1
网站导航 :
www.wczs.com
微信号:cdwczs2017