


项目鸟瞰图
武城幕墙中标内容包括:西安邦泰悦九章小区项目一标段2#-5#、9#、11#、13#-15#楼、2#商业幕墙工程,幕墙面积约4万平方米。




设计亮点
邦泰悦九章层间造型采用铝板作为装饰材料,由于铝板可塑性强,能实现多种造型和色彩效果,通过不同颜色、纹理和造型的组合,形成丰富的立面层次感。通过横向和纵向的线条分割,打破大面积铝板的单调性,增加建筑立面的节奏感和立体感。
层间横向铝板线条设计为弧形,与周边建筑的方正格局形成鲜明对比,打破了刻板规整的视觉规律,形成了鲜明的反差,极具张力。
该建筑也采用石材作为装饰材料,使用石材幕墙使得建筑视觉延伸感强。石材特殊节点,抛弃传统的立柱和横梁,采用非对称角钢连接,简化了施工步骤。
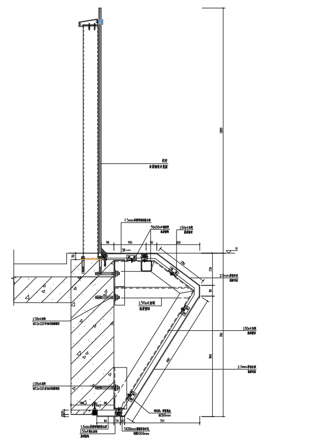
层间铝板造型竖剖节点

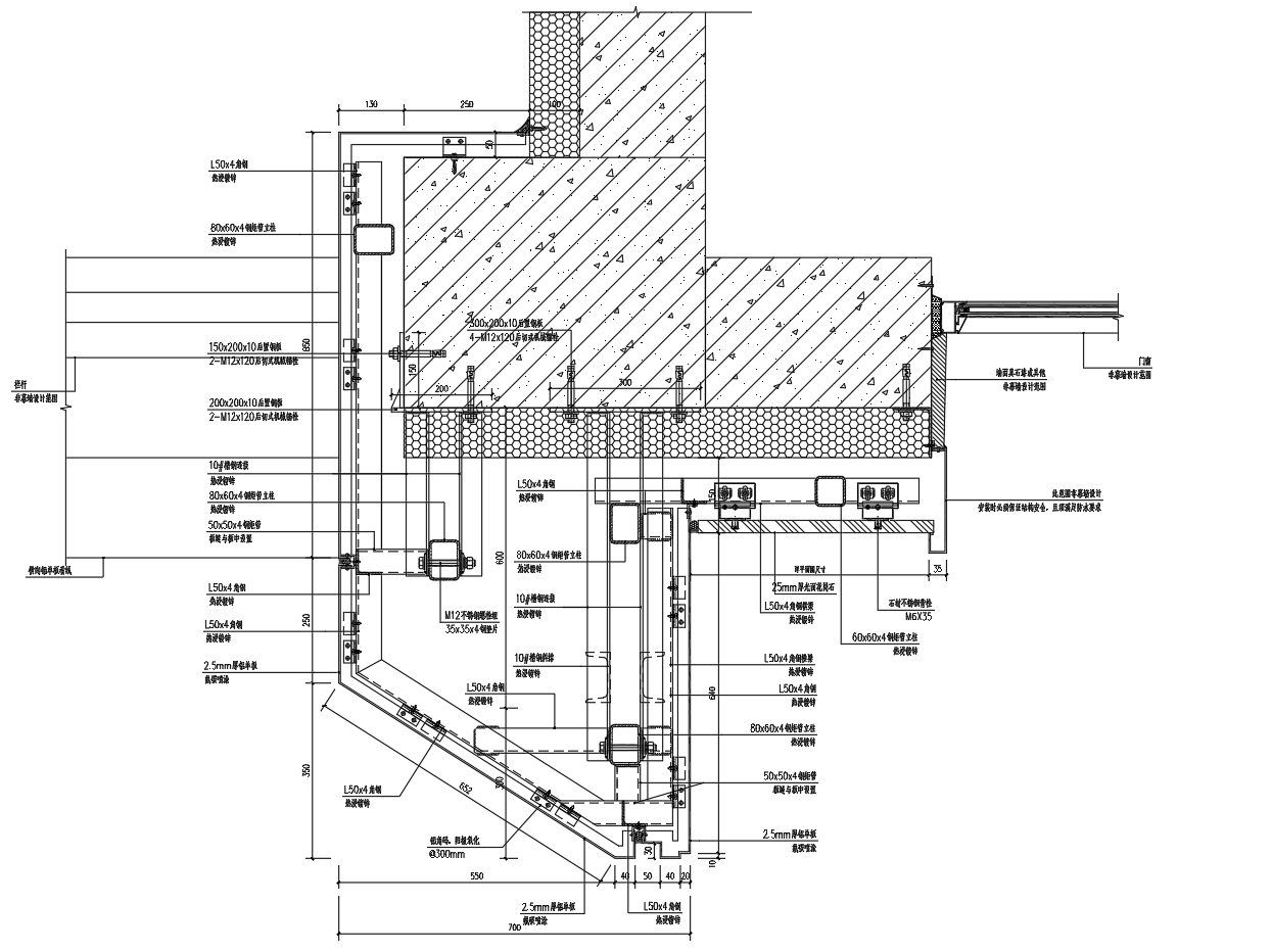
竖向铝板横剖节点


028-85315579
13908004916
13708088828
成都武城装饰工程有限责任公司成都幕墙设计公司欢迎你 备案号:蜀ICP备12021971号-1
网站导航 :
www.wczs.com
微信号:cdwczs2017